Italiano
5 Camere 4 Bagni 341 m2
Caratteristiche principali
Codice
M768MAG1326
Prezzo
41.250 EUR
Classe
E
Locali
8
mq Terrazzo
16
Altre caratteristiche e accessori
Riscaldamento
Autonomo
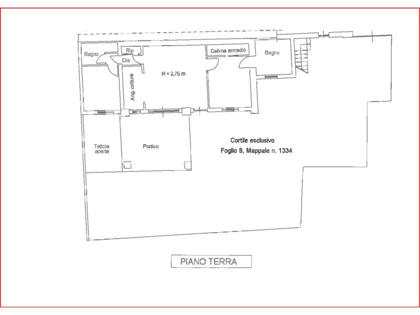
Tre unità immobiliari in due distinti corpi di fabbrica così definite: nel primo corpo di fabbrica fronte strada comunale, abitazione di vani 3,5 composta da soggiorno/cucina, antibagno, 2 bagni, camera e locale sottotetto tot. mq. 95. Nel nel secondo corpo di fabbrica in area cortilizia interna due appartamenti di vani 5 ciascuno composti rispettivamente dal piano terra soggiorno/cucina, antibagno, 2 camere, bagno e stanza (ex portico) e ripostiglio tot. mq. 128.
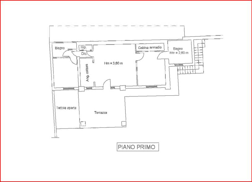
Al piano primo: soggiorno/cucina, antibagno, 2 camere, bagno e terrazza tot. mq. 117.
Consulenza preliminare gratuita
Via Po 15, Pieve Albignola (PV)
Cookie preference