Italiano
2 Camere 1 Bagni 95 m2
Caratteristiche principali
Codice
M769MAG1226
Prezzo
51.000 EUR
Classe
E
Locali
3
Mq Balcone
8
Altre caratteristiche e accessori
Piano
Quinto
Riscaldamento
Autonomo
Cantina - Solaio
Cantina
Accessori
Ascensore
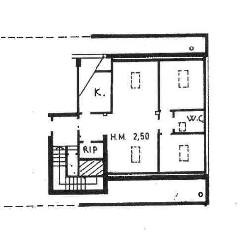
Appartamento al piano quinto mansardato trmoautonomo. .L’immobile è composto da: disimpegno in ingresso, ripostiglio, soggiorno, cucina, corridoio zona notte, bagno, due camere (una singola e una matrimoniale), corredata da un balcone verso il fronte ovest.Completa la proprietà un locale accessorio pertinenziale (cantina) posto al piano interrato del fabbricato.
Consulenza preliminare gratuita
Corso della Vittoria 17, Novara (NO)
Cookie preference